参数信息
| 案例名称 | 俩人俩猫的人间烟火 | 户型 | 复式 | 案例面积 | 100㎡ |
| 风格 | 日式 | 店面 | 北四环 | 设计师 | 唐文倩 |
设计说明
这是一套层高4.5米不到的长条形单面采光公寓,作为即将步入婚姻的小两口,他们希望通过这次设计,弱化原户型多处不足之处,让整体空间更具备温馨小屋的感觉,本次设计也以着重解决户型缺陷,延伸视觉的手法来营造空间舒适感。
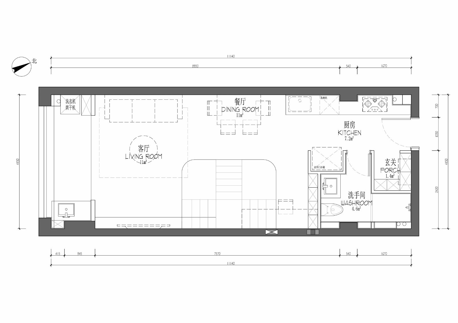
平面图
客厅
客厅看入口处视角,整个户型中的矮梁,很不适宜地在主卧的空间里,为避免这根矮梁,将床错开梁的位置下,为避免后期的不方便,我们多次和业主探讨,业主说:躲不掉的,就只能去适应它,哈哈。 利用床背后的空间做了整排的转角衣柜,入住后特地询问过是否空间足够,业主回答说非常足够并且还有富余。在小空间里,我们都会去解决客户的实际需求。
餐厅
可伸缩的餐桌,满足了日常俩人和几个朋友聚会的用餐空间,墙面上不规则的镜子,照射到温馨的工作区,和延伸了Y字型楼梯的视觉
卧室
午休时刻,可以撸撸猫咪“妹妹”在午休
夜晚的主卧一角,也很温馨
厨房
由于跨度和排烟管的限制,将开放式厨房设置在了进门左手处,接近4米的橱柜满足了业主喜欢买买买的储物需求。
卫生间
利用鞋帽间剩余出的空间,为一楼卫生间提供了恰到好处的淋浴间位置,同时也满足了业主想要的干湿分离的需求。 借用原户型里柱子和管道,设置了几个壁龛,极大地解决了卫生间储物空间。
本方案设计师
