参数信息
| 案例名称 | 新中式 | 户型 | 三居室 | 案例面积 | 165㎡ |
| 风格 | 中式 | 店面 | 北四环 | 设计师 | 阮祥 |
设计说明
一家三口居住,客户喜欢中式风格,给人一种笔墨气息。
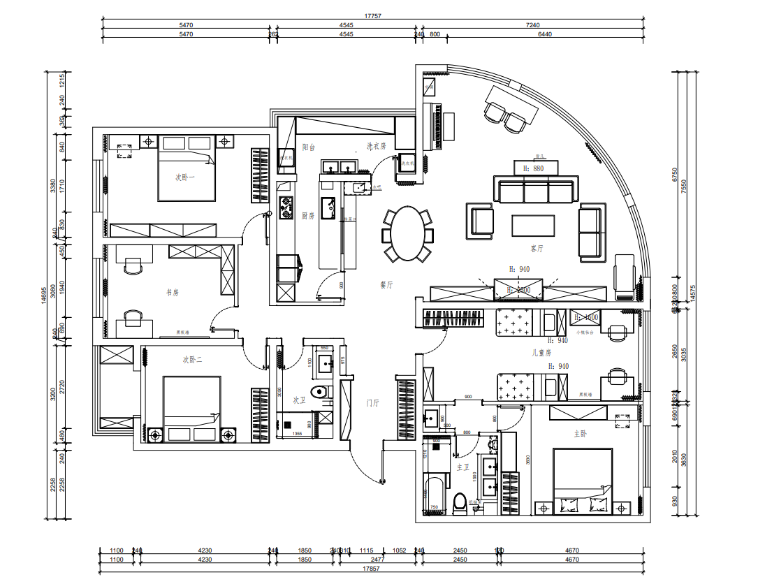
平面图
客厅
忧郁的蓝,素雅的米、沉稳的棕与散发迷人魅力的装饰线条提升了客厅气质,使空间更加有层次感,搭配山水壁布,使餐厅空间更有书香之气,形成其特有的空间气质。
餐厅
圆形的餐厅家具犹如一道灵动的光束,瞬间拉开了空间的维度,配上一抹清新的浅蓝色,我想就餐时也会心情明媚灿烂吧。餐桌上的花束让空间集典雅、现代、庄重于一体,西厨的设计提升了生活品质。
卧室
主卧,方寸之间,皆是优雅。极具自然风味的喜上眉梢壁布让整个空间显得优美儒雅,窗下的书桌满足阅读又不会过于压抑,黄与蓝的视觉碰撞令卧室耳目一新。“和而不同,各得其所”卧室内的每一个角落,都是精心布置,细细打磨,足以安放闲适的身心。
儿童房
本方案设计师
